Caselette - appartamento nuovo con giardino

Caselette (Torino)

Rif: CASO7V
Condividi Linkedin Whatsapp Stampa
€ 205.000
Appartamento
80 Mq
3 Vani
Giardino 100 mq
Classe energetica A3
2 Camere
1 bagno
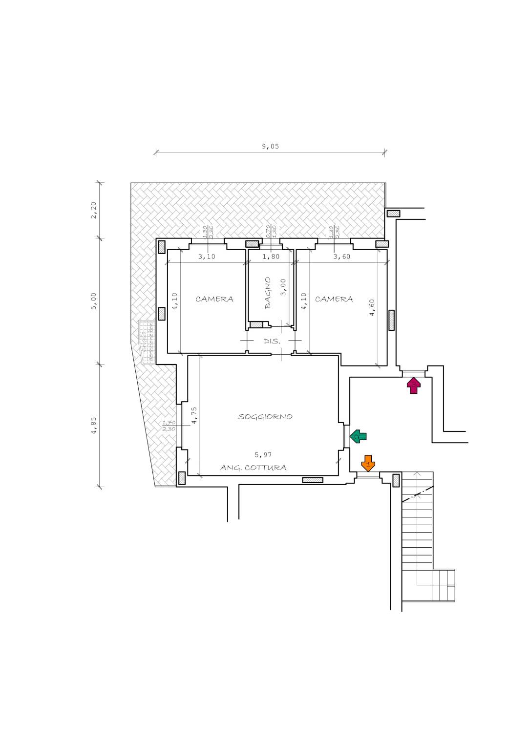
Vicinanze Strada Contessa, nei pressi delle scuole, in zona residenziale proponiamo appartamento di recente costruzione 2023, con riscaldamento e raffrescamento di ultima generazione a pavimento con pompa di calore. L'immobile è composto da ampio e luminoso ingresso su salone con cucina a vista, 2 camere da letto, disimpegno e bagno. Terrazzo e giardino privato su 2 lati ad angolo. Possibilità di acquistare ampio box auto. Spese minime di gestione. Da vedere!

Dettaglio immobile

Contratto Vendita
Rif CASO7V
Prezzo € 205.000
Provincia Torino
Comune Caselette
Superficie 80 mq
Vani 3
Camere 2
Bagni 1
Classe energetica A3 (DL 90/2013)
EPgl,nren 48,66 kwh/m2 anno
Riscaldamento autonomo
Condizioni nuova costruzione
Spese condominiali € 20
Anno di costruzione 2023
Ascensore no
Giardino 100 Mq
Cucina a vista
Terrazza si

Consistenze

Descrizione Superficie Sup. comm.
Principali
Immobile - piano terra 80 Mq 80 Mqc
Accessorie
Giardino/Resede 100 Mq 10 Mqc
Totale 90 Mqc

Planimetrie

Richiedi maggiori informazioni

Autorizzazione al trattamento dei dati personali+
Dichiaro di aver letto l'informativa sulla privacy ed accetto le condizioni d'utilizzo del servizio.
Riempi il campo con il codice riportato nell'immagine*
Codice Captcha
Chiamaci Contattaci